Extension et restructuration de la demi-pension du lycée Jean Monnet à Franconville (95)
Maîtrise d’ouvrage
Conseil Régionel Île de France
Maîtrise d’oeuvre
VHA : Architecte associé
Mahmoud Keldi : Architecte mandataire
Saunier & Associés : BET cuisine
Superficie
1610 m2Budget
4.3 M€Particularités
Démarche HQE, gestion de l'entretien, drainage, paysage
Capacité cuisine centrale
1200 repas
Photos ©Bruno Barjhoux


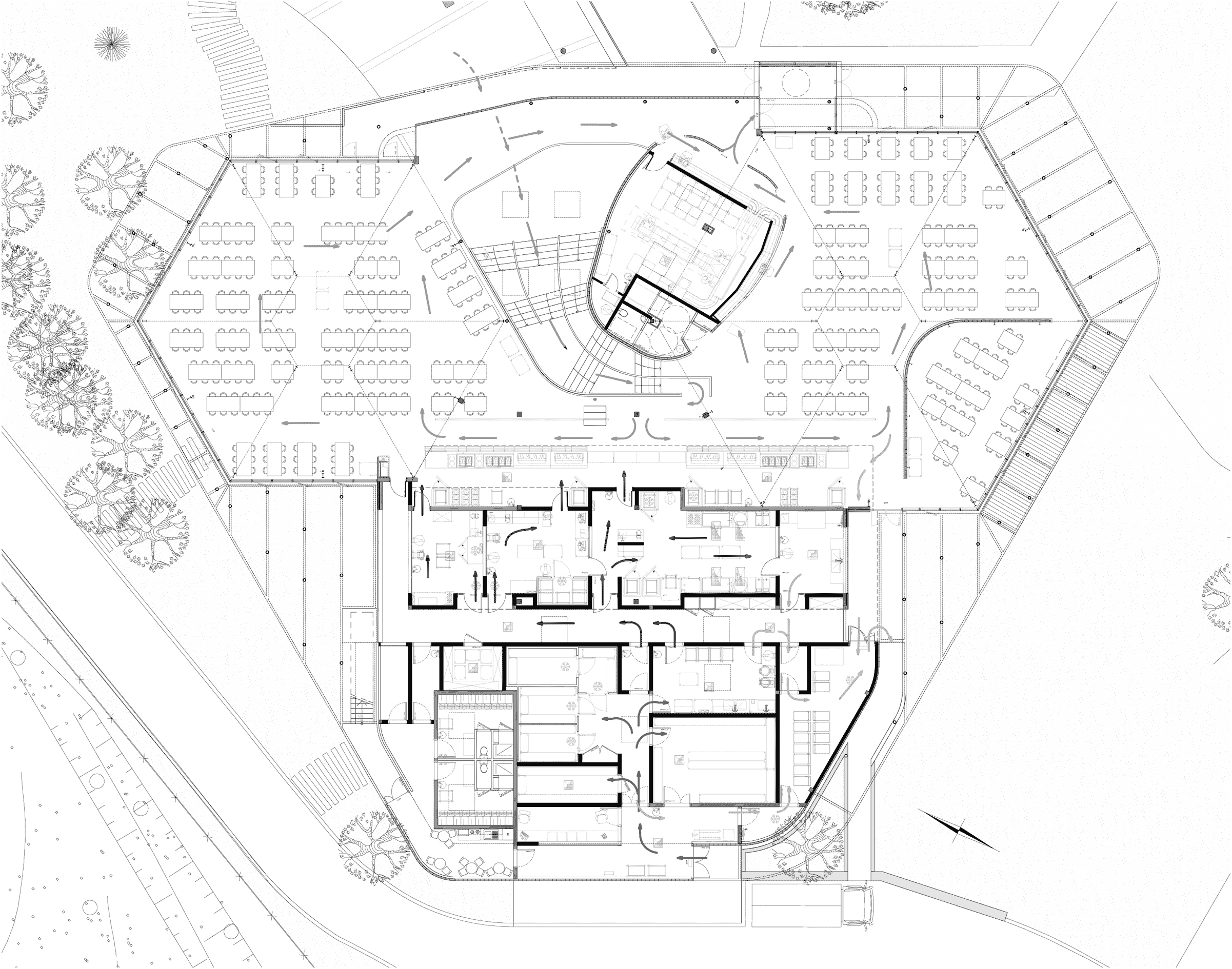
La restructuration des services de restauration du lycée Jean Monnet répondait d'un premier abord à des problèmes fonctionnels et normatifs, mais aussi à une demande de fiabilité de gestion de l’équipement et à une meilleure intégration dans son environnement boisé.
Nous nous sommes attachés à renforcer l’autonomie de ce bâtiment vis-à-vis du lycée. À le rendre lisible et attractif.
En créant une entrée basse, au même niveau de celle de l’entrée du lycée, nous avons supprimé les croisements de flux et proposé un fonctionnement avec une seule laverie située au centre du volume. Proposition évidente en termes d’investissement matériels, de gestion et de coût d’entretien et d’exploitation.
Les deux salles de restaurant sont mises en relation en ouvrant l’espace initialement enclavé de l’entrée. Cet espace devient alors unitaire et lumineux. Les perspectives intérieures deviennent larges et profondes. Partout le regard se porte vers la nature environnante au travers des larges façades vitrés du bâtiment.





